Casa Margarita
Refurbishment Complete
Address
Casa Margarita
Calle Gaucin 14
Sotogrande 11310,
San Roque,
Province of Cadiz,
Spain
Overview
Contract type:
Type:
Location:
Bathrooms:
Bedrooms:
Area:
Description
This exquisite seven bedroomed residence is currently undergoing a thorough remodelling and modernisation. The property is situated within a large secluded plot and offers sublime living and entertaining space with truly stunning countryside and golf views.
The property is furnished and consists of 740 m2 of living space arranged over three floors on a 4,000 m2 plot. - when finished it will feature stunning floor combinations of natural timber, aged marble and top quality ceramics. The centrepiece of the house is a spectacular double height living room with a viewing gallery from above.
The sumptuous master bedroom suite is approximately 100m2 in size and is flanked by two double en suites. The ground floor has a further 4 modernized bedrooms each with en suite bathroom. The main living accommodation is on the ground floor and features a bespoke kitchen leading out to a large heated pool, ample terraces and separate tiber framed bar/seating area.
The property is front line golf and enjoys views of the Almenara golf course as well as lakes and sea.
Rent
Villa
Sotogrande
7
7
760m2
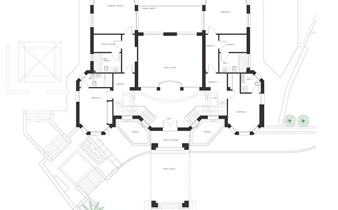
GROUND FLOOR PLAN
UPPER FLOOR PLAN
BASEMENT FLOOR PLAN
<
>
Floor Plans
Map